
אדריכלות ועיצוב פנים
ציבורי קהילה
ציבורי קהילה
פעילות אחרונה: לפני שעה אחת
להתיעץ עם אדריכליות ומעצבות מקצועיות בנושאי אדריכלות, רישוי, תכנון ובניה ועיצוב פנים, החל מזכויות... פירוט נוסף
ציבורי קהילה
תיאור הקהילה
להתיעץ עם אדריכליות ומעצבות מקצועיות בנושאי אדריכלות, רישוי, תכנון ובניה ועיצוב פנים, החל מזכויות ואחוזי בניה עבור דרך תכנון אידיאלי ופונקציונאלי של החלל וכלה ברעיונות ואלמנטים עיצוביים, פתרונות מבריקים, עיצוב מטבחים, תאורה, חיפויים וריצופים, נגרות וריהוט, שילובי צבעים וטקסטורות, תקציב, חוזים, כתבי כמויות, גימורים וכל מה שחשוב לכם בבניה חדשה ושיפוץ
תכנון סלון ומטבח ביחידה
קדם ‹ Forums ‹ אדריכלות ועיצוב פנים ‹ תכנון סלון ומטבח ביחידה
תכנון סלון ומטבח ביחידה
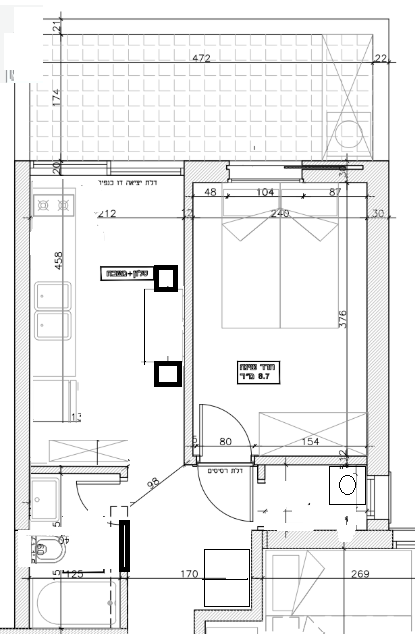
פורסם ע"י דסי קנופף הייטק on 25/12/2024 ב9:46 pmאשמח לעזרתכן..
יש לנו תכנון ליחידת דיור, אבל הוא לא מספק אותי.
אני רוצה שיכנס בסלון-מטבח כל מה שזו"צ צריך [ספה, שולחן וכסאות וכל מה שצריך במטבח..]
אשמח אם תוכלו לייעץ לי איך לסדר את הכל בצורה שגם יכנס וגם יהיה נעים ולא צפוף [-יחסית..😀].
–אפשרי גם לשנות מיקום של אמבטיה ושירותים–
תודה מראש על הקדשת הזמן עבורי!
דסי קנופף הגיבה לפני 1 שנה, 1 חודש 13 חברות · 20 תגובות- 20 תגובות
חברה חדשה תכנון מאוד יפה ופרקטי,
מאוד חשוב שלזוצ יהיה מרחב מחיה ולא כל בלטה מוכתב מה יהיה…
יש לי רעיון- אך גם לה חסרונות משלה,במקום של הספריה לשים את המקרר
את השיש לעשות ר' על הקיר של האמבטיה וזה מקצר את אורך השיש במטר לפחות
ובסוף הסלון מטבח נשאר מרחב מחיה שהם יוכלו לשחק במיקום של השולחן והספונת…
בהצלחה
חברה חדשה הייתי מעבירה את האסלה שיהיה יחד עם האמבטיה (שהח. אמבטיה יסתיים בקו ישר עם החדר – נעים יותר לעין)
במקום השירותים שיהיה שם מ. כביסה ומייבש
במקום הספריה כיור
מגדילה את המטבח עד הסוף וכך המטבח יגדל ויהיה מקום לספה וספריה
וגם תרויחי כיוון אויר נוסף שזה משמעותי מאוד!
פעילה בקהילה אולי , צריך לבדוק אם אפשר לשים את האמבטיה במקום של הארון בחדר שינה, (מבחינת הקיר של הממ"ד. וגם מבחינת מיקום…)
חסרים לי מידות- מה האורך של החדר שינה ומה הרוחב של השירותים,?
האיזור של האמבטיה והכיור הוא מקום ממש טוב לסלון קטן, ואז שולחן ואז השיש..
הפיצול של השירותים והאמבטיה לא מספיק נח… ולכאורה לוקח לך מקום יקר…
והרעיון של חוי פרומוביץ גם נשמע ממש טוב מבחינת הכיוון אויר, ( למרות שזה שיש מרפסת כזו גדולה ומזמינה כבר עושה את זה…)
פעילה בקהילה מסכימה עם תמר
בעיקר בגלל שנוצר פה מסדרון לא לענין
ולא צריך יותר מ60-65 רווח בין ארון למיטות, הארון יוקדם ושם תכניסי אמבטיה וכו
תרוויחי סלון קטן ומרחב מחיה גדול יותרומי את ?
אולי איזו בת דודה ? (קשורה לקנופף ממלצר ?)
יכולה לפנות באישי אעזור לך בכיף…
P76801שטרודל…
פעילה בקהילה תודה רבה על השקעת הזמן והמחשבה!
לגבי הרעיון להזיז את השירותים לאמבטיה, זה לא יוצר מעבר צר מדי לסלון-מטבח?
ולגבי סגירת חלק מהמרפסת, יש תיכנון לצרף את היחידה לבית כשנצטרך,
השאלה כמה זה שווה את העלות…
ושוב תודה!!
פעילה בקהילה אם אפשר לגנוב קצת מהחדר שינה זה יכול ליצור תכנון נקי לחדר אמבטיה
וייתן יותר שטח לסלון
כדאי לא לשבת מול קיר
- סטטוס תעסוקתי:
פעילה בקהילה אני הייתי מצרה את החדר שינה ב-20 ס"מ ועושה את הכניסה לחדר מהצד השני
אם את עושה יחידה מרוהטת אז הייתי מצרה את החדר ב-40 ס"מ וקונה מיטות 80
אבל אם זה הולכת להיות יחידה לא מרוהטת אז את לא יכולה להצר את החדר יותר מ-20
כי רוב הזוגות שקונים ריהוט קונים מלכתחילה מיטות 90.
פעילה בקהילה תודה רבה!
החדר שינה לא יכול להשתנות. זה חדר מחוזק וזה הגודל [המינמילי] שהגשנו להיתרמצרפת תוכנית עם מידות.
חברה חדשה הי
ניסיתי קצת להתקשקש עם זה
לדעתי אם את לא רוצה להרחיב לכיוון המרפסת אז התכנון שעשית הכי הגיוני
בכל אופן כדאי לך לשקול את זה כי הסלון מטבח נורא קטן
ונגיד ספה זה דבר מאד!!! חשוב ביחידת דיור וכאן אין לך ס"מ פנוי לזה
אני גם חושבת שארון כביסה במרפסת לא בטוח שזה הכי אידאלי…לקחת כל פעם את הבגדים עד לשם, קצת מסורבל… וגם מה קורה בחורף? זה מרפסת מקורה?
אני ניסיתי להעביר את האסלה לאמבטיה כמו שהרבה פה הציעו , הרבה יותר נוח וגם חוסך מקום
ובמקום השירותים לשים מכונת כביסה ופינת שירות
אבל תכלס זה רק מחמיר את הבעיה של הסלון הקטן….
אז אני חושבת שכדאי לך לשקול להגדיל את הסלון (או להישאר עם האופציה שעשית..)
בהצלחה רבה!!!!
חברה חדשה שלום וברכה.,
אני חושבת שזה שהאסלה בנפרד מהאמבטיה יהיה חסרון משמעותי זה ממש לא נוח ככה.
נראה לי כדאי להעביר את האסלה לחדר רחצה אפילו על חשבון הסלון מטבח.
עשיתי לך סקיצה תנסי לראות איך זה מסתדר לך במידות.
בהצלחה
פעילה בקהילה
פעילה בקהילה אם שייך לפרוץ דלת מהצד השני כמו בתוכנית ששולמית מציעה,
אני חושבת שזה כיוון נכון, ובאופן הזה השטח מנוצל הכי טוב.
את שטח המטבח הייתי קצת מקטינה ל290 -300 זה מספיק
ואז נשאר לך בסוף הדירה 340 מ' שיכול להספיק גם לשולחן וגם לפינת ישיבה.
הרבה הצלחה!
פעילה בקהילה תודה רבה ממש לכל אחת שמנסה לעזור לי!
מדהים לראות איך כל אחת רוצה לעזור!!!
1. דווקא חשבתי שזה יתרון שהשירותים והאבטיה לא ביחד, למה זה חיסרון??
2. מעניין מה תגידו על הרעיון שהיה לי [מצורף]
תודה!!!
חברה חדשה למה בעיני זה חסרון כי כאני נכנסת להתארגן זה מעצבן שצריך להיכנס ל2 חדרים( וד"ל)!
הסקיצה החדשה נחמדה כיוון מעניין אבל המקרר רחוק ונראה תקוע!
פעילה בקהילה בעיני זה בסדר ששרותים ואמבטיה לא ביחד
גרתי בעבר בכזאת דירה
לא היה נורא בכלל
פעילה בקהילה גם לי זה לא נראה נורא כ"כ
ודווקא בדירה של זוג זה יכול להיות אפילו מעלה..
[שמעתי את זה מעוד אנשים]
פעילה בקהילה אני חושבת שלרב האנשים יותר נח שהאמבטיה והשרותים כן ביחד, גם אם אפשר להסתדר ככה.
ואם את רוצה למצוא שוכרים בקלות כן כדאי לך לחשוב על מה שרב האנשים היו מעדיפים ולא רק איך שאת חושבת.
ותבדקי גם אם המקרר לא מדי רחוק מהמטבח, לא נח ללכת הרבה באמצע שמבשלים.
חברה חדשה אולי תנסי להקטין את האמבטיה, אין לי את כל המידות המדויקות,
בפינה בהול שמתי מ. כביסה ומעליו כיור לשטיפת פנים, שיניים וכו'
(אולי מבחינת המקום תוכלי לשים גם זה וגם זה אחד ע"י השני
ואז להעביר את המטבח בצמוד לחדר רחצה (ראה שרטוט)
מקרר ואח"כ שיש (או לשנות בין המקרר לכיריים – לשיקול דעתך…)
ואז תרוויחי שטח ממש נעים, גם של מעבר חופשי וגם של פינת ישיבה לספה ואוכל.
הרבה הצלחה ואל ייאוש!!!
פעילה בקהילה לגבי ההצעה להקטין את האמבטיה – אני חושבת שחזרת לגודל המקורי שהיה לי בשירטוט
לגבי לשים את המקרר בכניסה למטבח-סלון, השאלה אם נשאר מספיק מקום למעבר.
אבל אם מחליפים עם הכיריים זה יכול להיות רעיון..
Log in to reply.



