
אדריכלות ועיצוב פנים
ציבורי קהילה
ציבורי קהילה
פעילות אחרונה: לפני 3 שעות
להתיעץ עם אדריכליות ומעצבות מקצועיות בנושאי אדריכלות, רישוי, תכנון ובניה ועיצוב פנים, החל מזכויות... פירוט נוסף
ציבורי קהילה
תיאור הקהילה
להתיעץ עם אדריכליות ומעצבות מקצועיות בנושאי אדריכלות, רישוי, תכנון ובניה ועיצוב פנים, החל מזכויות ואחוזי בניה עבור דרך תכנון אידיאלי ופונקציונאלי של החלל וכלה ברעיונות ואלמנטים עיצוביים, פתרונות מבריקים, עיצוב מטבחים, תאורה, חיפויים וריצופים, נגרות וריהוט, שילובי צבעים וטקסטורות, תקציב, חוזים, כתבי כמויות, גימורים וכל מה שחשוב לכם בבניה חדשה ושיפוץ
אשמח לשמוע מה דעתכן
קדם ‹ Forums ‹ אדריכלות ועיצוב פנים ‹ אשמח לשמוע מה דעתכן
אשמח לשמוע מה דעתכן
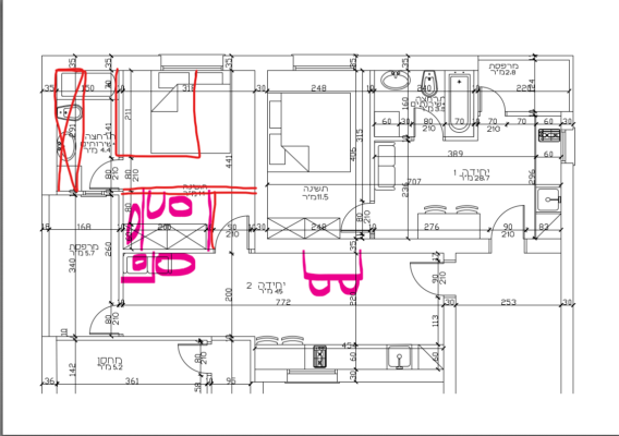
פורסם ע"י אסתי ס אדריכלות ועיצוב פנים on 07/05/2025 ב11:05 pmאני עומדת לפני בנית יחידות
ועדין לא שלמה עם התוכנית
אשמח עם למישהי יהיה מה לשנות להוסיף
תודה רבה…..
דבורה יגלניק הגיבה לפני 9 חודשים 8 חברות · 7 תגובות- 7 תגובות
- סטטוס תעסוקתי:
פעילה בקהילה אם תוכלי לרשום קצת נתונים כמו איזה קירות קיימים ואיזה חדשים, כדי להציע שדרוג לתוכניות. יחד עם זאת, הקירות הגובלים עם המרפסות נחשבים קיר חיצוני, הייתי מעבה אותם ל 20 סמ'. זוג הכיריים במטבח לטעמי, ממש מעט. הכיור שנמצא בקצה השייש הייתי מזיזה. את הכיוון של פתיחת הדלת בחדר הרחצה של יחידה 1 הייתי הופכת.
פעילה בקהילה ביחידה 2,
אם אפשר הייתי מוזיזה את הקיר עם הארון יותר פנימה לחדר שינה, ומנסה לעשות שם עוד חצי חדר שממנו יצאו למרפסת,
כמו כן את המטבח אולי כדאי לעשות בצורת ר'
כך השטח יהיה יותר מנוצל.
חברה חדשה ביחידה 2 יש חד"ש מאוד גדול אפשר לקצר אותו ב- 80 ס"מ ולתת קצת מרחב בסלון מטבח
כמו שדבורי כתבה באמת קצת קשה לשדרג בלי נתונים סביבתיים
פעילה בקהילה
פעילה בקהילה עבודה יפה מאד!! תצליחי הלאה
בכל מקרה אני מצטרפת למה שכתבו לך פה- דברים נכונים מאד
דבר נוסף, באמבטיה יחידה 1 באמת לשנות את כיון הדלת וכן לתת 'בריכת' אמבטיה קטנה יותר (להגיע ל130) ושם לתת נישה לארונית ספרים קטנה בעומק 30.
אגב, כיריים 2 להבות זה בסדק גמור ליחידות.
מלא ס"ד הלאה 🙂
חברה חדשה במטבח יש כיור אחד, זה בכוונה?
דווקא יש לך כאן נתונים ממש טובים
אם תוכלי לומר לאיזה ציבור זה מיועד אולי יהיה קל יותר להבין
ולעזור בשינויים שצריך
בכל אופן הייתי נותנת יותר מרחב בסלון מטבח
ואת החדרים יותר מקטינה
והרעיונות שהציעו כאן ממש יפים
הרבה הצלחה!!
Log in to reply.






