
אדריכלות ועיצוב פנים
להתיעץ עם אדריכליות ומעצבות מקצועיות בנושאי אדריכלות, רישוי, תכנון ובניה ועיצוב פנים, החל מזכויות... פירוט נוסף
מחפשת מעצבת מטבחים להשלמת עיצוב המטבח – בתשלום סמלי לתיק עבודות או למתחילות
מחפשת מעצבת מטבחים להשלמת עיצוב המטבח – בתשלום סמלי לתיק עבודות או למתחילות
אני באמצע לבנות מטבח. הארונות למטה והבלידינגים מוכנים. אני רק מתלבטת לגבי הארונות עליונים והשולחן בר שאמור להיות מחובר לשיש. אני ממש אובדת עצות לגבי העיצוב, הצבע וכו'
גם שיש וכיורים עוד לא בחרתי. (זה פחות בעייתי מבחינתי כי אני יודעת בערך מה אני רוצה)
אז בנתיים אמרתי לנגר שייצר רק את הארונות התחתונים והבילדינג ואחרי שאני יחליט ימשיך בייצור.
ועוד משהו הנגר הוא אבא שלי…
יש לי תקציב של 300 ש"ח עבור יעוץ והדמיה (אפשר גם ב AI)
(ממש לא יודעת מה המחירים בשוק אז יכול להיות שהתקציב בכלל לא רלוונטי, אל תכעסו…)
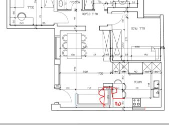
מי שמעוניינת שתשלח מייל ל yaeli1636 שטרודל גימייל…מצורף התוכנית של המטבח. לגבי השולחן בר. אני עדיין מתלבטת אם להכניס אותו לתוך העמוד ישבו מהצד השני.
כך שהמטבח יוגדל ע"ח הסלון.הארונות עליונים/ הקלאפה אמורים להיות מעל הכיורים.
המטבח למטה והבילדינגים בצבע סהרה. כולו מגירות.
Log in to reply.
