
אדריכלות ועיצוב פנים
ציבורי קהילה
ציבורי קהילה
פעילות אחרונה: לפני 7 שעות
להתיעץ עם אדריכליות ומעצבות מקצועיות בנושאי אדריכלות, רישוי, תכנון ובניה ועיצוב פנים, החל מזכויות... פירוט נוסף
ציבורי קהילה
תיאור הקהילה
להתיעץ עם אדריכליות ומעצבות מקצועיות בנושאי אדריכלות, רישוי, תכנון ובניה ועיצוב פנים, החל מזכויות ואחוזי בניה עבור דרך תכנון אידיאלי ופונקציונאלי של החלל וכלה ברעיונות ואלמנטים עיצוביים, פתרונות מבריקים, עיצוב מטבחים, תאורה, חיפויים וריצופים, נגרות וריהוט, שילובי צבעים וטקסטורות, תקציב, חוזים, כתבי כמויות, גימורים וכל מה שחשוב לכם בבניה חדשה ושיפוץ
עזרה בתכנון
קדם ‹ Forums ‹ אדריכלות ועיצוב פנים ‹ עזרה בתכנון
עזרה בתכנון
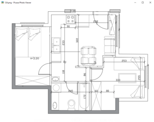
פורסם ע"י הדסה כהן אדריכלות ועיצוב פנים on 16/10/2025 ב9:17 amשלום לכולן!
אשמח בעזרתכן
מצ"ב תכנון ראשוני, אם יש למישהי רעיון תכנוני פרקטי יותר,
חשוב מאד ללקוח מטבח גדול, וכניסה נפרדת לחדרים.
אשמח בכל תגובה!
תודה רבה!
רבקי אלכסנדרוביץ הגיבה לפני 3 חודשים, 1 שבוע 6 חברות · 7 תגובות- 7 תגובות
חברה חדשה שרטוט מאד יפה ונקי.
התכנון בהחלט נכון והגיוני.
מצורף עם שינויים קלים בהעמדת הריהוט ,שנכונים יותר בעיני.
הספריה בגובה עד החלון.
כדאי גם להזיז את דלת ח. הרחצה ב10 ס"מ שלא תהיה צמודה מידי לאמבטיה.
בהצלחה.
פעילה בקהילה בדיוק חשבתי כמו יהודית. לגבי ריהוט ודלת רחצה. בנוסף לגבי קיר איפה שהספה בתכנון הראשוני- הייתי בודקת אופציה לקצר ב10-20 סמ שיתן הרגשת מרחב. בהצלחה!
פעילה בקהילה אגב לגבי כיריים- להזיז קצת שמאלה. לא צמוד למקרר
פעילה בקהילה ממליצה להחליף מיקום בין שירותים לכיור, שהאסלה לא תהיה מול הדלת.
בנוסף, אולי כדאי לשים את הכיריים יותר קרוב לחדרים ולהזיז את הכיורים. לא נוח ולא נכון מקרר ליד כיריים.
בהצלחה.
פעילה בקהילה אני גם חושבת שהמקרר יכול להינזק מהחום של הכירים.
פעילה בקהילה בגדול חלוקה ותכנון נכון
מה שפחות מדויק זה הפרופורציות
12 מ"ר לסלון מטבח זה קטן ביחס לדירת 3 חדרים
לשם השוואה מידות סטנדרט של סלון זה 20 מ"ר, מטבח 9 מ"ר
כדי לנסות להגדיל על חשבון החדר
Log in to reply.


