
אדריכלות ועיצוב פנים
להתיעץ עם אדריכליות ומעצבות מקצועיות בנושאי אדריכלות, רישוי, תכנון ובניה ועיצוב פנים, החל מזכויות... פירוט נוסף

ציבורי קהילה
ציבורי קהילה
פעילות אחרונה: לפני שעה אחת
להתיעץ עם אדריכליות ומעצבות מקצועיות בנושאי אדריכלות, רישוי, תכנון ובניה ועיצוב פנים, החל מזכויות... פירוט נוסף
ציבורי קהילה
להתיעץ עם אדריכליות ומעצבות מקצועיות בנושאי אדריכלות, רישוי, תכנון ובניה ועיצוב פנים, החל מזכויות ואחוזי בניה עבור דרך תכנון אידיאלי ופונקציונאלי של החלל וכלה ברעיונות ואלמנטים עיצוביים, פתרונות מבריקים, עיצוב מטבחים, תאורה, חיפויים וריצופים, נגרות וריהוט, שילובי צבעים וטקסטורות, תקציב, חוזים, כתבי כמויות, גימורים וכל מה שחשוב לכם בבניה חדשה ושיפוץ
קדם ‹ Forums ‹ אדריכלות ועיצוב פנים ‹ תוכנית בנית גג, יעוץ
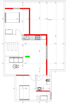
אשמח לשמוע מאדריכליות שמכירות צורות חלוקה המיועדות להשקעה- ציבור חילוני
האם התוכנית מוצלחת? מה הבאגים ואיך אפשר לשפר.
מדגישה- מדובר בעלית גג.
תודה מראש
גם בדירות לשקעה וגם בדירות מגורים
צריכה להיות חלוקה נכונה לאיזורים
בנוסף תמיד יש להצניע פתחים של שירותים ועדיף גם חדרי שינה
לא יכול להיות שדלת שירותים תפנה ישירות לפינת אוכל ולסלון
זה כלל בסיסי בתכנון
לא התאפקתי ושיפצתי את התוכנית על הבסיס המוצע
השרטוט של רבקי נראה באמת נכון יותר,
אני הייתי מחליפה בין המטבח לסלון –
נעים יותר להיכנס לסלון פתוח (זה גם מוכר יותר)
זה גם יחסוך את הפינה שהמטבח "גנב" מהחדר,
בנוסף משאירה את האמבטיה כמו בתכנון הראשון ומוסיפה שם מכונת כביסה
Log in to reply.
✨ כדי לשפר את החוויה שלך באתר, אנחנו משתמשים בקבצי עוגיות (Cookies).
האישור שלך יעזור לנו להציג תוכן מותאם אישית, לשפר את השירותים שלנו ולעבוד בצורה חלקה יותר. אפשר תמיד לשנות את ההעדפות שלך בכל שלב.
There was a problem reporting this post.
אנא אשרי שאת רוצה לחסום חבר זה.
לא תוכלי עוד:
אנא המתיני מספר דקות לסיום תהליך זה.
חשוב: לא כל פרסום מאושר, נא לפרט בדיוק במה מדובר




