אדריכלות ועיצוב פנים
ציבורי קהילה
ציבורי קהילה
פעילות אחרונה: לפני 8 דקות
להתיעץ עם אדריכליות ומעצבות מקצועיות בנושאי אדריכלות, רישוי, תכנון ובניה ועיצוב פנים, החל מזכויות... פירוט נוסף
ציבורי קהילה
תיאור הקהילה
להתיעץ עם אדריכליות ומעצבות מקצועיות בנושאי אדריכלות, רישוי, תכנון ובניה ועיצוב פנים, החל מזכויות ואחוזי בניה עבור דרך תכנון אידיאלי ופונקציונאלי של החלל וכלה ברעיונות ואלמנטים עיצוביים, פתרונות מבריקים, עיצוב מטבחים, תאורה, חיפויים וריצופים, נגרות וריהוט, שילובי צבעים וטקסטורות, תקציב, חוזים, כתבי כמויות, גימורים וכל מה שחשוב לכם בבניה חדשה ושיפוץ
הבו לי עצות בנושא תכנון הבית, לא רוצה שכל הבית יראה מהכניסה, מה ניתן לעשות?
קדם ‹ Forums ‹ אדריכלות ועיצוב פנים ‹ הבו לי עצות בנושא תכנון הבית, לא רוצה שכל הבית יראה מהכניסה, מה ניתן לעשות?
Tagged: #עיצוב פנים
הבו לי עצות בנושא תכנון הבית, לא רוצה שכל הבית יראה מהכניסה, מה ניתן לעשות?
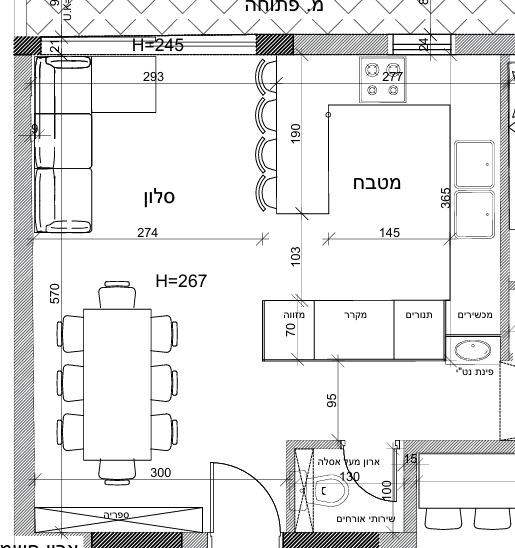
פורסם ע"י מוריה דדשי אופנה יופי וטיפוח on 02/12/2025 ב1:30 amזה הכניסה לבית, אני לא רוצה שכל מי שנימצא בדלת יראה הכל, יש לכם פיתרון? אולי אפילו לתקוע קיר סתם העיקר…
לפי המעצבת, מאחורי הדלת יש את השולחן, והספה בקיר ממול המטבח, כמובן פתוחה לרעיונות
תודה לכולם!
רייזי שטאובר הגיבה לפני 5 חודשים, 2 שבועות 7 חברות · 13 תגובות- 13 תגובות
חברה תורמת
אם אפשר להזיז את הדלת ימינה יכול להיות פטרון
פעילה בקהילה
זו דרישה ספציפית שלך לשים ספה בתוך המטבח?- כי בכללי זה נשמע רעיון פחות מוצלח.. (או שאולי אני לא רואה טוב את התוכנית כי זה חסום לי ורואה רק בקטן)
אם תוכלי להעלות תוכנית עם מידות, אני מניחה שנוכל לעזור לך יותר
פעילה בקהילה
כמו שרייזי אמרה:תעלי את הדירה נורמלי כדי שנוכל לעזור
פעילה בקהילה
הגדלתי את התמונה ואם אני מבינה נכון וממה שאני מצליחה לראות זה קיר גבוהים שחוסם כל אפשרות להציץ למטבח מדלת הבית. גם צורת הפתיחה של הדלת לא מאפשרת לראות הרבה (את הסלון) אלא אם כן פותחים את הדלת ביותר מ90 מעלות.
הדבר היחיד שרואים מהדלת זה הקיר הפינתי מימין,שאפשר לשים שם ארון מעילים. ובלי מראות, שהסלון לא ישתקף😉חברה רשומה
מעלה שוב את הסקיצה יותר טוב, העניין שהשירותים בכניסה לבית בוטל, לגבי הוזזת הדלת שכחתי להגיד שאי אפשר כי זה עמודים, כפי שניתן לראות עכשיו
תודה לכולם!!
פעילה בקהילה
לא הצלחתי להבין מה עם השרותים יש או אין?
אבל אם יש ממש כמעט אי אפשר לראות כלום מהכניסה.
אולי קצת אפשר להאריך את הקיר גבוהים במטבח
חברה רשומה
לפי הסקיצה יש, אבל בפועל הוא מבוטל,
לא רואים את הספה? או השולחן?
אגב מה עדיף למקם את השולחן והספה ככה כמו התמונה או הפוך?
חברה רשומה
אולי גם כדאי להחליף כיון דלת הכניסה
פעילה בקהילה
מצטרפת לגמרי ליהודית- מהכניסה רואים רק את כיור נט"י
ועל הקיר הימני (ההוא שבאורך 1 מ') ניתן לשים ארון מעילים
פעילה בקהילה
תודה רייזי.
אבל מדלת הכניסה לא רואים כלום!!! אפילו לא את כיור נט"י.
לא רואים כלום , רק קיר.(שאפשר לשים שם ארון מעילים)פעילה בקהילה
אם השירותים מבוטל, רואים את הכיור, אבל לדעתי לא נורא בכלל- הוא ימוקם בתוך נישה ויעוצב יפה.
הייתי משאירה את השולחן והספה במקומם הנוכחי, כי כך האזור פתוח ומאוורר יותר. החלפת מיקום הספה עם השולחן תעשה את החלל צפוף והרבה פחות נגיש
פעילה בקהילה
לא כדאי להחליף את כוון הדלת כי אם היא תהיה הפוכה יראו את כל הסלון מהכניסה.
ולהחליף בין השולחן והספה יכול להיות שכן יהיה יותר נח שהשולחן קרוב למטבח ולא כל מי שיושב על הספה רואה מולו את המטבח.
פעילה בקהילה
מצטרפת לשולמית מבחינת חלוקה פינת אוכל צריכה להיות קרובה למטבח
ומוסיפה שאת הספה הרבה יותר חשוב להצניעה מפינת אוכל
Log in to reply.