
אדריכלות ועיצוב פנים
ציבורי קהילה
ציבורי קהילה
פעילות אחרונה: לפני 4 שעות
להתיעץ עם אדריכליות ומעצבות מקצועיות בנושאי אדריכלות, רישוי, תכנון ובניה ועיצוב פנים, החל מזכויות... פירוט נוסף
ציבורי קהילה
תיאור הקהילה
להתיעץ עם אדריכליות ומעצבות מקצועיות בנושאי אדריכלות, רישוי, תכנון ובניה ועיצוב פנים, החל מזכויות ואחוזי בניה עבור דרך תכנון אידיאלי ופונקציונאלי של החלל וכלה ברעיונות ואלמנטים עיצוביים, פתרונות מבריקים, עיצוב מטבחים, תאורה, חיפויים וריצופים, נגרות וריהוט, שילובי צבעים וטקסטורות, תקציב, חוזים, כתבי כמויות, גימורים וכל מה שחשוב לכם בבניה חדשה ושיפוץ
הדמיה ותכנית בית 3 חדרים
קדם ‹ Forums ‹ אדריכלות ועיצוב פנים ‹ הדמיה ותכנית בית 3 חדרים
הדמיה ותכנית בית 3 חדרים
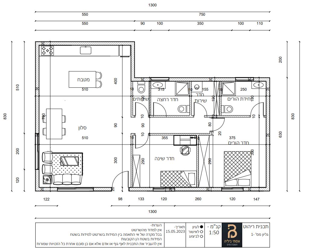
פורסם ע"י אסתי ביליה אדריכלות ועיצוב פנים on 18/05/2023 ב7:54 pmהיי לכולם,
אשמח לקבל הערות והארות
תודה🙂
מלכה הרשלר הגיבה לפני 2 שנים, 10 חודשים 5 חברות · 8 תגובות- 8 תגובות
חברה רשומה
https://kedemcenter.co.il/members/estybilia/
עיצוב מהמם, ההדמיה בסקצאפ?
בהדמיה של המטבח היא הפוכה מהשרטוט הכיריים והכיור.
חדר רחצה הורים יותר נוח שהכיור ליד הכניסה כי יותר משתמשים בה .
נראה בסרטוט שיש 2 שטיחים…
משו אחרון…. השולחן בסלון נראה קטן יחסית לאי.
בהצלחה רבה
חברה רשומה
דבר ראשון, התוכנית נראית מצוין, הן מבחינת גרפיקת קוים, והן מבחינה שרטוטית.
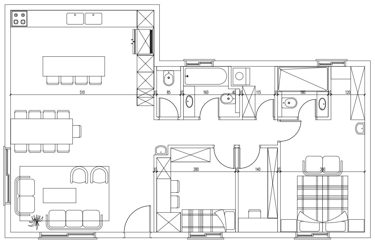
שנית, יש לך אפשרות להוסיף שרותי אורחים, לדעתי זה משדרג בהמון! (מצורף שרטוט)אם את רוצה את יכולה להגדיל חדר כביסה על חשבון יחידת הורים שגם מעט גדולה.
וכן, שימי לב לריהוט של חדר האמבטיה, עדיף לשים כיור עם ארון גם בשרטוט ע"מ לוודא מרחב שימוש.
חברה רשומה
בוקר טוב,
תודה לכל המגיבות🙂
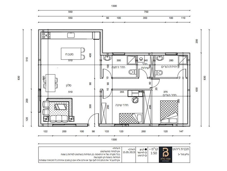
מצ"ב תכנית לאחר שינויים
יש עוד הצעות לשיפור?
חברה רשומה
תכנון מקסים וכמו שכבר אמרו לפני- תענוג לראות כזה שרטוט נקי וברור!
הדמיות מיוחדות ריאליסטיות ויפיפיות
זו דירה די גדולה, ואפשר לנסות לנצל אותה יותר, אומנם מעט יותר צפוף, אבל נראה לי שווה להוסיף עוד חדר עבודה או משהו דומה, החדרים בתוכנית שלך מרווחים תענוג, אבל אם זו היתה הדירה שלי, הייתי בוחרת בכל זאת להכניס עוד פינות בשטח…
קיר גבוהים מול הדלת מגדיל מאד את שטחי האחסון של המטבח ואת היחידה האחרונה אפשר לנצל לויטרינה שפונה לכיוון הדלת, ואז זה גם דקורטיבי…
סורי אם חפרתי, אבל אני מדי אוהבת לתכנן… ואתגרים כאלה מדליקים אותי😛🙇♀️
המון המון הצלחה בכל!
חברה רשומה
היי רעכי בוקר טוב,
תודה על המשוב המושקע
ממש אהבתי את הניצול המקסימלי של כל מילימטר🙂
רואים את זה גם באתר שלך
באיזה תוכנה של הדמיות את עובדת?
אני הייתי מוותרת על חדר הארונות בחדר שינה
לטובת חדרי אמבטיה מרווחים יותר..
המשך יום נעים.
חברה רשומה
היי לכולם, בכמה לתמחר הדמיה ברמה כזו?
חברה רשומה
הייתי משנה את כיון המיטות בחדר שינה שיהיו מול הכניסה
את יכולה להרוויח עיצוב מטורף על כל הקיר
הפתרון של מיטות מתחת לחלון הוא יישום קבלני למדי והמראה לא משהו…
חברה רשומה
אני מבינה שהמקלחונים זה ענין של פרוגרמה, כי אם לא הייתי מחליפה אחד מהם לאמבטיה.
את הדלת של היחידת הורים, הייתי מזיזה לכיוון הכניסה לחדר. (עושה miror לכל היחידה) לא נחמד ללכת את כל החדר כדי להגיע לשרותים…
ושימי לב להוסיף כיור נט"י לשרותי אורחים.
מבינה שגם המטבח זה עניין של פרוגרמה וגם גודל וכמות החדרים…. כי אם זה אילוצים, ורצית להצליח להכניס עוד דברים, אז תפרטי לנו מה וננסה לעזור…
אה, וסליחה שלא החמאתי על ההדמיות אבל הן באמת יפהפיות וברמה גבוהה ממש!
בקשר לתמחור, אני פחות בתחום… עשיתי הדמיות כמעט ורק בלימודים…. (דווקא יצא לי יפה…)
Log in to reply.