
אדריכלות ועיצוב פנים
להתיעץ עם אדריכליות ומעצבות מקצועיות בנושאי אדריכלות, רישוי, תכנון ובניה ועיצוב פנים, החל מזכויות... פירוט נוסף
שיתוף תהליך מטבח
שיתוף תהליך מטבח
אני רוצה לשתף פרוייקט של מהפך במטבח.
הלקוחה פנתה אלי עם בקשה פעוטה: לעזור לה לבחור צבע לציפוי חזיתות המטבח הקיים.
הגעתי לדירה, ואז נוכחתי לראות שהמטבח, שנבנה לפני 16 שנה בסטנדרט קבלני, כבר לגמרי עשה את שלו!
המטבח כל כך קטן, והמשפחה בת מעל 10 נפשות בליע"ר
ארונות המטבח (שהם בערך 2.5 ארונות) כמעט כולם רקובים ומפורקים.
השיש והכיורים שבורים ודורשים החלפה מיידית.
בנוסף פינת האוכל היא במעבר. כל מי שרוצה להכנס לחדרים, נדרש לעבור דרכם.
הילדים חוגגים עם האוכל בכל הבית, כיוון ששטח האוכל אינו מוגדר ואינו תחום.
המעבר לחדרים צפוף וקטן.
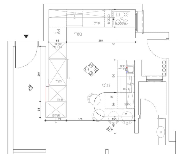
מצרפת למטה תכנית מצב קיים.
הסברתי ללקוחה, שבמצב כזה, חבל על כל שקל שמשקיעים ב"פלסטרים" כגון ציפוי ארונות, ובוודאי בהחלפת שיש וכיורים, שמסתכמים בעלות של כמה אלפים טובים, בזמן שהבסיס – כל כך גרוע.
נתתי ללקוחה הערכה כמה יעלה מטבח חדש כולו, שייבנה בהתאם לצרכים שלה.
והיא החליטה שהיא יוצאת לדרך.
את התכנית החדשה, התאמנו בצורה מהודקת לצרכים ולאורח חיים שלהם:
שברנו את קיר הגבס שחנק את הסלון ואת המעבר, הארכנו את המטבח. ובכך השגנו 2 מטרות:
1. הגדלת המטבח
2. יצירת פרטיות הכל כך נדרשת למטבחבתכנית, כפי שתוכלו לראות בהמשך, פיצלנו את המטבח למשטח בשרי, וגבוהים. ובנפרד משטח חלבי + דלפק אכילה.
את האי עיגלנו, כדי לאפשר מעבר מבלי להפריע ליושבים.
בנוסף קיצרנו את הקיר שסגר את פינת הנטילה, כדי לתת יותר מרחב במעבר לחדרים.
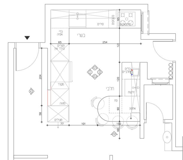
והנה התכנית החדשה:ויאללה לתמונות של תוצאות המהפך:
את הקיר החוצץ בין הכניסה לבין המטבח, אותו חיפינו ב-2 סוגי חיפוי פולימרי, בשילוב תאורה.
בהמשך, ארון מעילים שפונה לכיוון הסלון ומנצל גם את שטח עובי הקיריצרנו מאסה של ארונות גבוהים, שנותנים הרבה אחסון
בצד החלבי,
היחידה הפתוחה משמשת כמקום אחסון לפח – נגיש ונוח, עם אפשרות שטיפה לרצפה מחד. אבל מוסתר לגמרי מהכניסה – מאידך.
בזמן בו המשפחה מתכנסת בהרכב יותר רחב – התא הפתוח מתפקד כמקום ישיבה נוסף.הצלחנו להתאים בצורה מושלמת חיפוי קרמיקה למשטח (שעשוי מקוורץ)
את הפרוייקט צילמה בכשרון שושי שווימר הנהדרת.
בכל מפגש עם הלקוחה אני רווה נחת, כשהיא מספרת כמה כיף לה לבשל במטבח.
היש סיפוק גדול מזה?
Log in to reply.
