
אדריכלות ועיצוב פנים
ציבורי קהילה
ציבורי קהילה
פעילות אחרונה: לפני 4 שעות
להתיעץ עם אדריכליות ומעצבות מקצועיות בנושאי אדריכלות, רישוי, תכנון ובניה ועיצוב פנים, החל מזכויות... פירוט נוסף
ציבורי קהילה
תיאור הקהילה
להתיעץ עם אדריכליות ומעצבות מקצועיות בנושאי אדריכלות, רישוי, תכנון ובניה ועיצוב פנים, החל מזכויות ואחוזי בניה עבור דרך תכנון אידיאלי ופונקציונאלי של החלל וכלה ברעיונות ואלמנטים עיצוביים, פתרונות מבריקים, עיצוב מטבחים, תאורה, חיפויים וריצופים, נגרות וריהוט, שילובי צבעים וטקסטורות, תקציב, חוזים, כתבי כמויות, גימורים וכל מה שחשוב לכם בבניה חדשה ושיפוץ
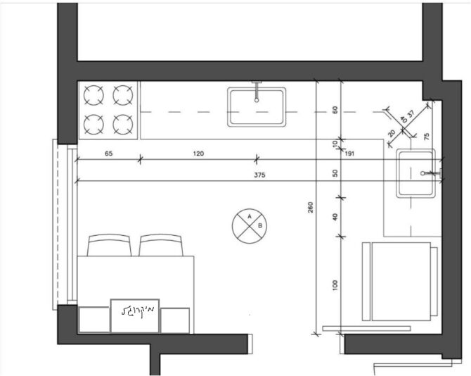
אשמח לעצתכם בתכנון מטבח
קדם ‹ Forums ‹ אדריכלות ועיצוב פנים ‹ אשמח לעצתכם בתכנון מטבח
אשמח לעצתכם בתכנון מטבח
פורסם ע"י נחמה פרידמן אדריכלות ועיצוב פנים on 10/02/2026 ב8:07 pmתכננתי בשביל לקוחה מטבח ולא מצאתי מקום נגיש למיקרוגל- רק בפינה של השיש ליצור אלכסון ששם זה יכנס (אבל אז זה מבזבז הרבה מקום גם בחלל מאחורה וגם מהארונות בצדדים…
אשמח לעצתכם האם זה הגיוני ככה?
או שיש אפשרות אחרת?
וגם בכללי אם יש למישהי רעיונות לשיפור אשמח—
תודה!!!!
ת ויץ הגיבה לפני 2 חודשים, 3 שבועות 8 חברות · 9 תגובות- 9 תגובות
- סטטוס תעסוקתי:
פעילה בקהילה
כמה דברים:
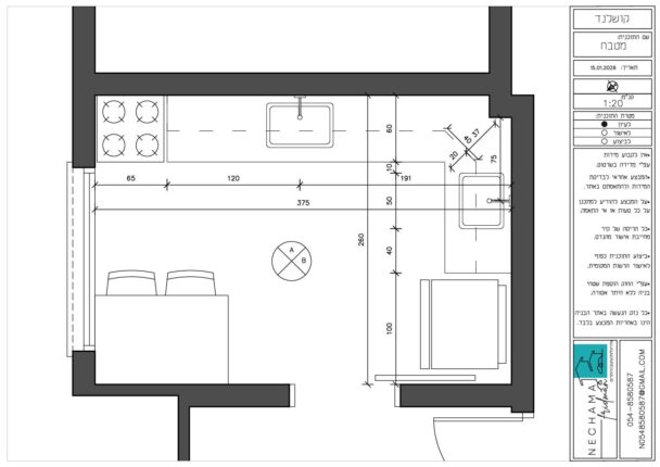
1. המדף של השמן בפריסה A, מידי נמוך, הבקבוקים לא יעמדו שם.
2. המגירה של המגבות גם כן בפריסה A מידי נמוכה בשביל מגבות, לפי דעתי תיכנס שם מגבת אחת…
3. לדעתי, לא נכון לעשות ארון פינתי אלכסון, זה לא באמת חוסך מקום.
- סטטוס תעסוקתי:
פעילה בקהילה
במחשבה שניה את יכולה לשים ארונות גבוהים מעל השולחן ושם לשים את המקרוגל
חברה רשומה
אני מצאתי פיתרון למצב דומה, הוא אמנם לא מתאים לכל מטבח תלוי מה עובי הקירות שמאחורי הארונות.
חצבתי בקיר שמאחורי המדף שייעדתי למיקרוגל בעומק של 10 ס"מ
(כמובן שבדקתי לפני כן עם הלקוחה איזה גודל מיקרוגל היא צריכה)
זה יצא מוצלח במיוחד, הלקוחה לא גומרת להודות לי על זה…
הרבה הצלחה!!
פעילה בקהילה
זה נראה ממש טוב,
לי הפריע המגירה של המעבד מזון והמיקסר מתחת לכיור…
תחשבי שיום אחד יהיה שם נזילה…..
לא חושבת שכדאי מכשירי חשמל מתחת ממש לכיור.
המון הצלחה!
פעילה בקהילה
נתת למיקרוגל 40 ? לא בטוחה שיש כזה מיקרוגל קטן.
למה מיועד השיש שבין המקרר לכיור?
אולי תזיזי את הכיור שמאלה ותעשי מימין יחידה על השיש ארון מיניבר ומעליו מיקרוגל?
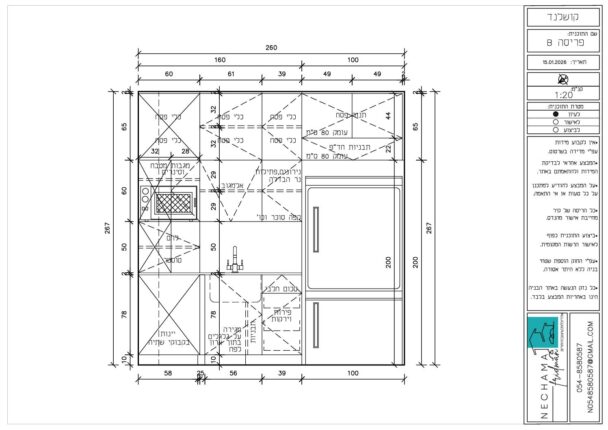
או מעל השולחן כמו שכבר כתבו לך.ראי שרטוט.
לגבי המגירות- מגירות של 90 ומטר במטבח לא גדול זה יותר מיטרד מנוחות.
הייתי מסתפקת במגירות של 80 ומכניסה מגירת בקבוקים צרה של 15 ס"מ לשמן וכד' .מניסיון אישי-מוצלח מאד!
גם אלמגוב של 60 זה קטן קצת והייתי עושה ארון 65 מינימום
בהצלחה!חברה רשומה
הם רוצים דווקא תנור משולב? הרבה יותר נוח שהכיריים יהיו בין הכיורים..
- סטטוס תעסוקתי:
חברה תורמת
לגבי העמדה של המטבח, כדי שהצד של החלבי לא יהיה רק 40 ס"מ שזה קטן מאד הייתי מעבירה את הכיור לצד של פריסה A וממקמת את הכיור קרוב לפינה ומיד אחריו את הכיור הבשרי כך שיתקבלו שתי משטחי שיש רצופים וגדולים לחלבי והבשרי, לגבי התנור כדאי שתבדקי את המפרט שלו ותשאירי מדויק כדי לא ישאר רווח בין התנור לארונות וגם תרוויחי עוד כמה ס"מ לשיש… בהצלחה!
- סטטוס תעסוקתי:
פעילה בקהילה
תודה לכולם על המענה!!!!<div>סרי קרלינסקי@ אני גם חושבת שהאלכסון לא חוסך מקום, אבל הם לא רצו להוסיף ארונות מעל השולחן וזה הפיתרון שמצאתי…</div><div>אתי ו.@ תודה על הרעיון!! אנסה לבדוק אם רלוונטי…
בתי כהן@ בגלל שהמטבח כ"כ קטן היה חבל לי לתת לזה מגירה גבוהה אחרת ושם זה מנצל את הגובה… אשמח לשמוע אם יש לך רעיון איך לשנות את זה.
יהודית ברזל@ את המידות נתתי לפי המיקרוגל שיש להם- הם לקחו בחשבון שלא יוכלו להכניס שם כל מיקרוגל,
לגבי המגירות אשמח להבין למה לא נח המגירות הגדולות (עשיתי גם בתוכם חלוקה פנימית לפי הצרכים שלהם)?
באמת רעיון המגירת בקבוקים- אציע להם—
תמר ז@,ציפרה ברוידא@את המיקום של הכיורים והתנור הם לפי מה שקיים והם לא מעונינים לשנות וכן גם הגדלים של המשטחי שיש…
</div>
kedemcenter.co.il
כל העובדות החרדיות במרכז קדם | ניתן לסנן לפי תחומי עניין, איזור וכדומה
חברה רשומה
אפשר לעשות את אחד מהארונות שמעל השיש,
חצי מהגובה שלו יחידה פתוחה בלי דלת,
ואז גם אם המיקרוגל מעט בולט זה לא מפריע,
אפשר לעשות את היחידה הזו בגוון שבו את רוצה לשלב במטבח.
בהצלחה,
Log in to reply.
