
אדריכלות ועיצוב פנים
ציבורי קהילה
ציבורי קהילה
פעילות אחרונה: לפני יום אחד
להתיעץ עם אדריכליות ומעצבות מקצועיות בנושאי אדריכלות, רישוי, תכנון ובניה ועיצוב פנים, החל מזכויות... פירוט נוסף
ציבורי קהילה
תיאור הקהילה
להתיעץ עם אדריכליות ומעצבות מקצועיות בנושאי אדריכלות, רישוי, תכנון ובניה ועיצוב פנים, החל מזכויות ואחוזי בניה עבור דרך תכנון אידיאלי ופונקציונאלי של החלל וכלה ברעיונות ואלמנטים עיצוביים, פתרונות מבריקים, עיצוב מטבחים, תאורה, חיפויים וריצופים, נגרות וריהוט, שילובי צבעים וטקסטורות, תקציב, חוזים, כתבי כמויות, גימורים וכל מה שחשוב לכם בבניה חדשה ושיפוץ
מעצבת פנים/אדריכלית: מה הדבר הכי הזוי ולא הגיוני שלקוחות רצו שתכנני להם?
קדם ‹ Forums ‹ אדריכלות ועיצוב פנים ‹ מעצבת פנים/אדריכלית: מה הדבר הכי הזוי ולא הגיוני שלקוחות רצו שתכנני להם?
מעצבת פנים/אדריכלית: מה הדבר הכי הזוי ולא הגיוני שלקוחות רצו שתכנני להם?
פורסם ע"י רבקי ברנדויין אדריכלות ועיצוב פנים on 21/01/2026 ב11:03 amאשמח שתשתפי אותי:)
מימי דיזיין הגיבה לפני 3 חודשים, 2 שבועות 4 חברות · 4 תגובות- 4 תגובות
פעילה בקהילה
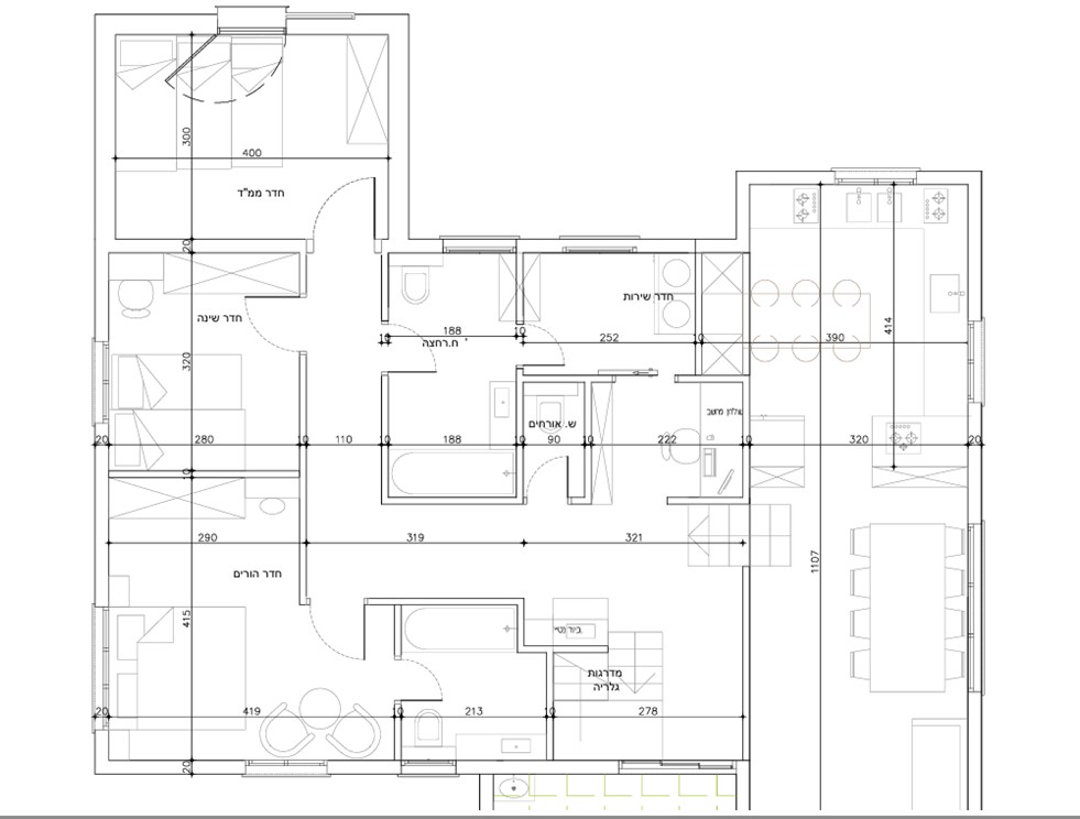
הכי הזוי בעיני להוציא דירת 4.5 חדרים מרווחים כולל יחידת הורים בדירת 88 מטר ברוטו שזה אומר 80 מטר נטו !!!
לא חלמתי להצליח, ניסיתי להוריד את הלקוחה ל4 חדרים מוצלחים,
אבל בסוף היא ניצחה ובעזרתו יתברך, הצלחתי
מצורף שרטוט מצב קיים לפני התכנון וכן מצורף שרטוט צבוע לאחרי התכנון החדש.
פשוט לא להאמין
אז אם יש לכם רצון חזק אל תוותרו, ולא על חשבון שום דבר אחר,
רק לשפשף את המח ולהתפלל לסיעתא דישמיא!פעילה בקהילה
פרלה ,שלום😉
חדרים מרווחים זו קצת היסחפות,
אבל כן, כל הכבוד! הצלחת להוציא בתכנון מתוחכם 4.5 חדרים כרצון הלקוחה!
הרבה הרבה הצלחה.
פעילה בקהילה
לתכנן מטבח עם 3 כיורים 3 תנורים ו- 3 כיריים נפרדים בחלל לא מאד גדול
מחפשת את התכנית זה היה לפני שנים
פעילה בקהילה
הנה מצאתי
בעצם זה היה קומה מתוך בית דו קומתי שפיצלנו ל2 דירות נפרדות
הפכתי את כל הקומה לדירה אחת(בתוספת ממ"ד)
ובמטבח 'גנבתי' מהמפלס העליון בשביל התנורים
Log in to reply.