
אדריכלות ועיצוב פנים
ציבורי קהילה
ציבורי קהילה
פעילות אחרונה: לפני 6 שעות
להתיעץ עם אדריכליות ומעצבות מקצועיות בנושאי אדריכלות, רישוי, תכנון ובניה ועיצוב פנים, החל מזכויות... פירוט נוסף
ציבורי קהילה
תיאור הקהילה
להתיעץ עם אדריכליות ומעצבות מקצועיות בנושאי אדריכלות, רישוי, תכנון ובניה ועיצוב פנים, החל מזכויות ואחוזי בניה עבור דרך תכנון אידיאלי ופונקציונאלי של החלל וכלה ברעיונות ואלמנטים עיצוביים, פתרונות מבריקים, עיצוב מטבחים, תאורה, חיפויים וריצופים, נגרות וריהוט, שילובי צבעים וטקסטורות, תקציב, חוזים, כתבי כמויות, גימורים וכל מה שחשוב לכם בבניה חדשה ושיפוץ
בקשה לחוות דעת על תכנון דירה
קדם ‹ Forums ‹ אדריכלות ועיצוב פנים ‹ בקשה לחוות דעת על תכנון דירה
בקשה לחוות דעת על תכנון דירה
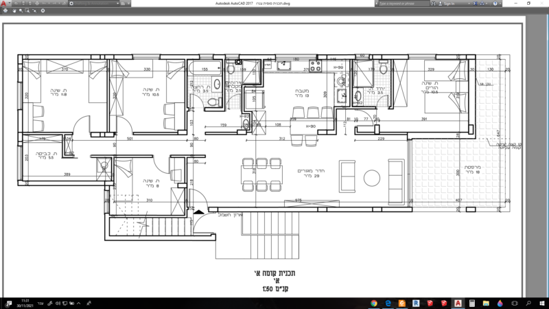
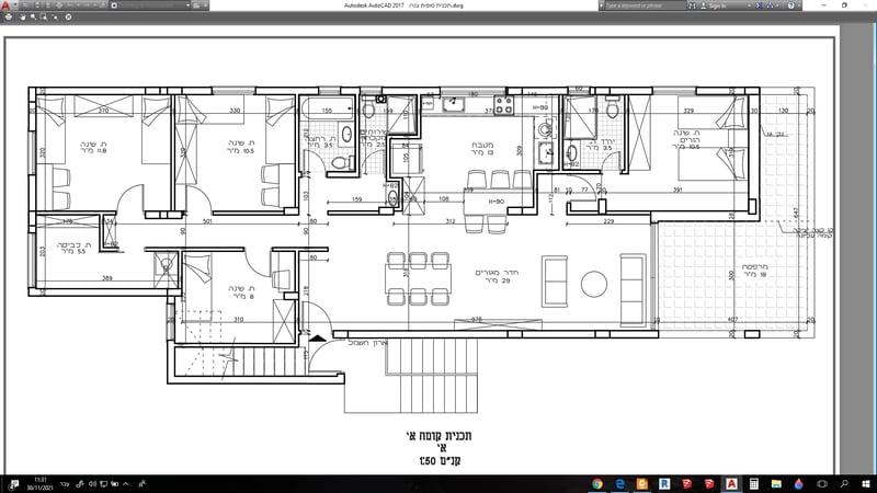
פורסם ע"י אבישג גרשי אדריכלות ועיצוב פנים on 23/11/2021 ב11:44 pmשלום, אני עושה כרגע שיפוץ של דירת 5 חדרים, הגעתי עם הלקוח לתכנית מסויימת שהתאימה לו ,
ואח"כ הוא ראה אצל שכן תכנון אחר שמצא חן בעיניו והוא רוצה לשנות את התכנית כמו התכנון של השכן, הבעיה היא שבתכנית שם היחידת הורים מהסלון, ניסיתי להסביר ללקוח את החסרון שבדבר והוא לא כ"כ הבין… הוא מתעקש שלו זה לא מפריע…
מצרפת את 2 התכניות, אשמח לשמוע את חוות דעתכן.
תודה רבה.
אבישג גרשי הגיבה לפני 4 שנים, 5 חודשים 12 חברות · 13 תגובות- 13 תגובות
חברה רשומה
התכנון הראשון לדעתי הרבה יותר נכון-
החלוקה של האזורים בבית עובדת הרבה יותר טוב-
יש אזור של חדרים- פרטי
ואזור כללי- הסלון והמטבח.
וגם כמובן כניסה לחדר הורים צדדי ולא מרכזי.
לדעתי תבדקי אם אפשר להגדיל בתכנית הזאת את השרותים ביחידת הורים שיהיה יותר מרווח- זה נראה קצת צפוף.
(המקלחון בשרותים היחיד קריטי? כי הוא נראה קצת בעונש…:) )
בתכנון השני שחדר ההורים מהסלון הכניסה לחדר ממש צרה, כמה יש שם?
זה נראה לא נח בכלל.
ובנוסף הם מפסידים את הכיור מחוץ לשרותים- כל פעם שיצטרכו ליטול ידיים הם יצטרכו ללכת למטבח או לקצה השני של הבית.
בסך הכל התכנון ממש מעולה!!
ונראה שניצלת בצורה מקסימלית את השטח!
במיוחד עם כל העמודים המאתגרים שיש בדירה!!
חברה רשומה
בתכנון הראשוני מכיוון שהמטבח פתוח לסלון הכל נראה הרבה יותר מרווח ונכון…
- סטטוס תעסוקתי:
פעילה בקהילה
גם לדעתי התכנית הראשונה יותר מוצלחת הגם שיש לי כמה הערות את יכולה לדבר איתי באישי [email protected]
חברה תורמת
אני יותר אהבתי את התכנון השני
המטבח נראה יותר מרווח וגם החדש שינה ליד שאר החדרים ולא מהסלון
פעילה בקהילה
גם אני חושבת שהתכנון השני נכון יותר. יש חלוקה ברורה לחלל ציבורי, וחלל פרטי.
חדר שינה לא צריך לצאת מהסלון.
רואה את זה כחיסרון משמעותי.
חברה רשומה
לא נכנסת לתכנון של כל הדירה לעצם השאלה:
לדעתי ברור שהיחידת הורים מהסלון היא פחות מוצלחת
ראיתי כזה דבר אפילו שהיה מאד צדדי ולא היה נח בכלל בכלל
ברור שהתכנית השניה עדיפה!!!
ולגבי הכיור לנט"י שמתבטל מעלה כאן רעיון שאפשר לנסות למקם את הכיור הדגשתי באדום – גישה מכיוון הפרוזדור כמובן מול החדר אמבטיה
בהצלחה
חברה תורמת
לטעמי אופציה ב' נכונה יותר,
ביחידת הורים, אני ממליצה לעשות כיור לנט"י מחוץ לשירותים, אולי לבנות קצת אחרת בצורה של מבואה לחדר עם כיור וארונית, ואז כניסה לחדר וכניסה לשירותים מקלחת.
אופציה א' תהיה נוחה מאוד למשפחות שמארחות הרבה, ואז יש להם חדר לאירוח שנפרד יחסית מהבית,- תלוי כמובן בצרכים, אם זה לא רלוונטי, ממש לא מומלץ התכנון המסוים הזה.
כמובן שבמקרה כזה צריך לתכנן ח. הורים + ח. שרותים ומקלחון נפרד.
חברה רשומה
פחות אהבתי את האופציה עם יחידת הורים מהסלון,
השאלה למה זה מצא חן בעיני הלקוח, אולי בשבילו זה נכון,
נראה לי צריך קודם לברר מה הוא אהב בתכנון של השכן, ולנסות להכניס את זה בצורה נכונה.
חברה רשומה
שלום,
אם הלכת על האופציה השנייה,
אני הייתי מסדרת איכשהו אחרת את חדרי הרחצה.
האם חייב שגם לשירותים היחיד יהיה חלון? נראה לי 75 ס"מ, תוסיפי חיפוי של אריחים זה יוצא בערך 70 ס"מ, ממש צר… וגם מאוד ארוך.
אולי כדאי להם להפסיד את המקלחון ואז את יכולה לשנות שם בין חדרי הרחצה,
או כמו שמצ"ב,
לא ממש ישבתי על זה, רק חשבתי שאולי כדאי להפסיד חלון לשירותי אורחים(וונטה ממש קצרה… ולרוב עושים הנמכה בח. רחצה לבוידעם ובכלל),
זה יצור כניסה ממש נפרדת לחדר הורים, נכון שעדיין מתחילת הסלון, אבל עדיין יותר פרטי, מאשר שכל אחד שצריך להגיע לחדרי השירותים "נצמד" לחדר הורים.
לא ישבת רציני על התכנית, אבל בעיקר חשבתי על לשקול שוב את חדרי הרחצה הקטנטנים (1.55 מ' רוחב לח. רחצה לכל הבית זה ממש מיני, כמעט יח')
המון הצלחה!
בטוחה שכל דבר עבר מחשבה מרובה,
במיוחד עם כל העמודים בשטח…
פעילה בקהילה
אני גם חושבת שהאופציה השניה עדיפה בהרבה…
מדמיינת לעצמי את האמא קמה משינה ויוצאת לתוך הסלון שיש בו אורחים….
- סטטוס תעסוקתי:
פעילה בקהילה
באופציה השניה צריך לתת את הדעת על מיקום המטבח , מגיעים לבית מדרך , רוצים כוס שתיה, צריך לעבור מהלך של כ-10 מ' עד למטבח….
חברה רשומה
וואו כולן פה מלאות רצון טוב
מרשה לעצמי לפתוח את התכנון מהתחלה:
יש לקוח, הוא רוצה דברים מסוימים, אבל אין לו מושג איך לבצע אותם
השאלה היא פה היא לא על תכנון כזה או אחר, כי אפשר לתכנן שוב ותצא עוד אופציה אחרת לגמרי.
מה שהלקוח אומר זו הפרוגרמה, לא התכנון….!!
אנחנו כאדריכליות צריכות לתת לו את הצורך שלו בצורה שעובדת.
סליחה שהארכתי…
בהצלחה לכולן
וטבישג- תעלי פה גרסה סופית, שנהנה!
חברה רשומה
תודה רבה לכל המגיבות !!
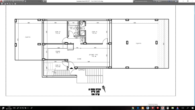
בקשר לתכנון אני יפרט יותר הדירה פה היא הרחבה של דירה קיימת והלקוח רצה מינימום שינויים (הוא שיפץ את הדירה לפני 6 שנים, כך שהכל יחסית חדש…) ולכן מיקום האמבטיה כמו שהוא והשירותי אורחים .(מצרפת מצב קיים)
הלקוח לא מבין את החסרון הגדול שהיח"ד הורים מהסלון כי כרגע החדר הורים גם כן מהסלון והוא לא מרגיש בזה בעיה להיפך הוא אומר שהוא אוהב שזה מנותק משאר חדרי הילדים…
מה שהוא אהב באופציה שהיח"ד מהסלון זה שהמרפסת יותר גדולה והמטבח במרכז מה שנותן יותר פתיחות לסלון הצר והארוך יחסית…
בכל מקרה הראתי לו חלק מהתגובות שלכן שאולי כך יבין וישתכנע שזה חסרון גדול וחבל, אך הוא עדיין טוען שבשבילו זה לא בעיה,
אני כמובן אחרי שהסברתי והבהרתי זורמת עם הלקוח…
אז שוב, תודה רבה על התגובות המחכימות ועל ההענות!!
אז הנה מצב קיים והתכנית הסופית.
Log in to reply.
