צריכה את עזרת האדריכליות המנוסות והיצירתיות בתכנון מטבח

קדם Forums אדריכלות ועיצוב פנים צריכה את עזרת האדריכליות המנוסות והיצירתיות בתכנון מטבח

  • תמר ר

    אדריכלות ועיצוב פנים
    חברה
    04/12/2025 ב10:18 am
    פעילה בקהילה

    האופציה 2 נראית יותר טובה

    מבחינת הפינת אוכל

    שהיא לא בתוך המרחב של העבודה במטבח

    וגם השטחי עבודה הנפרדים …

  • העני בארנשטיין

    אדריכלות ועיצוב פנים
    חברה
    04/12/2025 ב10:25 am
    חברה רשומה

    נטפרי חוסם את התוכניות….

    יש לך אפשרות לשלוח בצורה שונה?

  • אסתי שינפלד

    אדריכלות ועיצוב פנים
    חברה
    04/12/2025 ב12:16 pm
    חברה רשומה

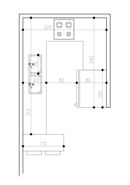
    באופציה 2 קשה לראות את המידות, אבל אני מבינה את היחס לפי אופציה 1

    בגדול 2 הכי מוצלח

    חוץ מהמשטח בין כיור לכיריים שנראה קטן מידי

    אפשר להעביר את הכיור העליון לקיר הימני ליד המקרר?

    אם כן, זו תהיה האופציה הכי טובה לדעתי

    ואגב, זו דירה או יחידה?

    כי 80 למקרר זה ממש קטן

    בפרט שצריך מרחב בצדדים לפתיחה

  • דסי קנופף

    הייטק
    חברה
    04/12/2025 ב1:48 pm
    פעילה בקהילה

    תודה על התגובות!

    אסתי, זה תיכנון לדירה, לא ליחידה.

    אם שמים מקרר של 70 – עדין בעייתי שהשאירו רק 80?

    ולגבי אופציה 2 – יהיה מקום לזוז במטבח? לא חנוק מדי?

    וכשהמקרר נפתח הוא לא יתפוס את כל המרחב?

    האם באופציה 1 אין יותר מרחב להיות ולעבוד במטבח?

    אשמח שתפרטו מבחינת מה עדיף את האופציה שבחרתן.

    תודה!!🤗

  • דסי קנופף

    הייטק
    חברה
    04/12/2025 ב2:56 pm
    פעילה בקהילה

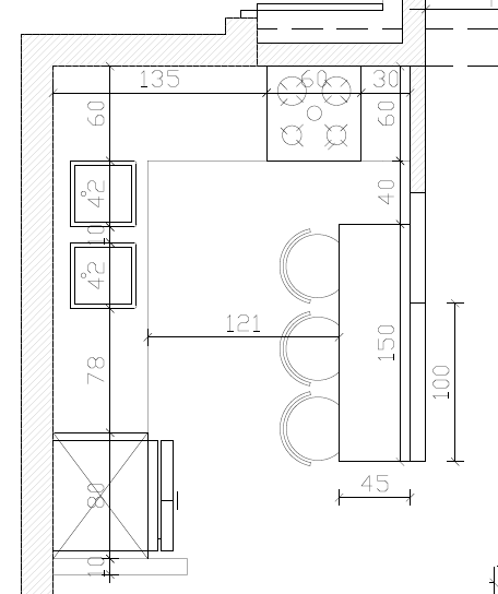
    חשבתי על שינוי הפריטים באופציה 2, אשמח לשמוע אם נראה לכם טוב יותר:

    אינדוקציה בפינה השמאלית למעלה,

    כיורים ליד האינדוקציה על הקיר השמאלי,

    תנורים בתוך ארון בין המקרר לשיש.

    [בנוסף חשבתי על ארון למעילים ותיקים שיפתח מהצד השני של המטבח וככה ננצל את הפינה הימנית במטבח]

    תודה!!!!

  • רייזי שטאובר

    אדריכלות ועיצוב פנים
    חברה
    06/12/2025 ב11:41 pm
    פעילה בקהילה

    קשה לראות כי נטפרי חוסם 🙁 אבל גם אני ניסיתי לשער לפי אופציה 1

    אופציה 2 נראית לכאורה טובה יותר, אבל לפני הכל תבדקי אם מבחינה הלכתית זה בסדר שהכיריים חוצצים בין הבשרי לחלבי- 'שפריצים' מסיר בשרי לצד החלבי ולהיפך… נכון שזה מנצל את השטח הכי טוב, אבל מנסיון, להרבה לקוחות שלי זה היווה בעיה.

    פתיחה לכיון הסלון תהיה טובה יותר מאשר למעבר, כי כשמו כן הוא- מעבר.

    למקרר נותנים היום 1 מ'- מקרר 70 הוא קטן וגם אם כרגע זה מה שיש לך, בהחלט יכול להיות שעוד כמה שנים תקני חדש ולא תרצי להחליף את כל המטבח בגללו.

    לפינת אוכל תוכלי לקחת 110 ס"מ שיספיק ל-2 כסאות. 140 ס"מ בכל מקרה לא יספיק ל-3 כסאות (החישוב הוא מינימום 50 למקום)

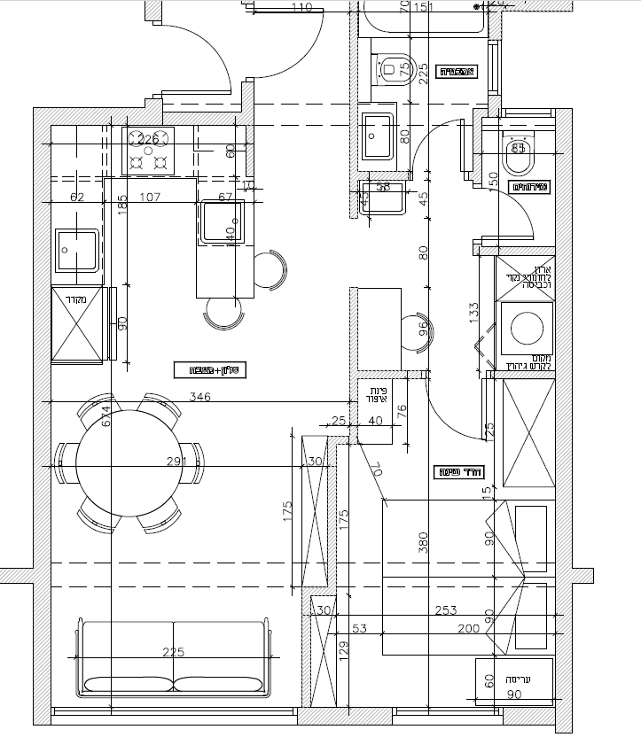
    מצרפת אופציה אפשרית (על הבסיס של אופציה 2) אבל גם היא לא מושלמת מכיוון שהמרחק בין השיש למקרר לא גדול ויש לקחת בחשבון שצריך בנוסף להרחיק את המקרר מהקיר.

    בהצלחה רבה ומלא ס"ד

  • דסי קנופף

    הייטק
    חברה
    07/12/2025 ב1:40 pm
    פעילה בקהילה

    תודה רבה רייזי על התשובות

    ועל התיכנון החדש.

    זה באמת נראה לך אפשרי לעבוד במטבח כזה עם שטח כ"כ קטן לעמוד בו?

    למה לא עדיף שהשולחן בצד הימני והמקרר בשמאל?

  • רייזי שטאובר

    אדריכלות ועיצוב פנים
    חברה
    07/12/2025 ב10:21 pm
    פעילה בקהילה

    את מתכוונת לאופציה 1?

    א. השטח לחלבי ממש קטן

    ב. 40 ס"מ בין משטח השיש לשולחן הם לא הגיוניים, ובמיוחד כשמדובר על כיריים

    ג. הכיורים פיציים- מתאימים בקושי ליחידה

    ד. אני לא מכירה את התוכנית, אבל אולי יש לך אפשרות להגדיל מעט את המטבח?- צריך שיהיה פרופורציות בין אזורי הבית השונים

  • רבקי אלכסנדרוביץ

    אדריכלות ועיצוב פנים
    חברה
    09/12/2025 ב11:34 am
    פעילה בקהילה

    אופציה 1 היא האופציה הכי נכונה

    המקרר לא יכול להיות מול השיש זה צפוף מדי

  • שרה ויטו

    אדריכלות ועיצוב פנים
    חברה
    11/12/2025 ב1:36 pm
    חברה רשומה

    אופציה 1 למרכז כיריים ולמרכז כיורים

    אופציה 2 אפשר להצמיד את המקרר לבר במקום לשיש, במיוחד אם רוצים להוסיף ארון מעילים

Log in to reply.

מעוניינת בפרסום

חשוב: לא כל פרסום מאושר, נא לפרט בדיוק במה מדובר

ניתן לפנות גם במייל ל: [email protected]

מה את מחפשת?

מילות מפתח פופולריות לפי תחומים

ניתן לחפש גם מילות מפתח , תפקידים וכישרון מיוחד שאינם מופיעים ברשימות - "נהגת", "ציור בחול" וכדומה.

×
דילוג לתוכן