תכנון דירה

קדם Forums אדריכלות ועיצוב פנים תכנון דירה

  • yehuditbarzel

    אדריכלות ועיצוב פנים
    חברה
    02/02/2026 ב7:41 am
    פעילה בקהילה

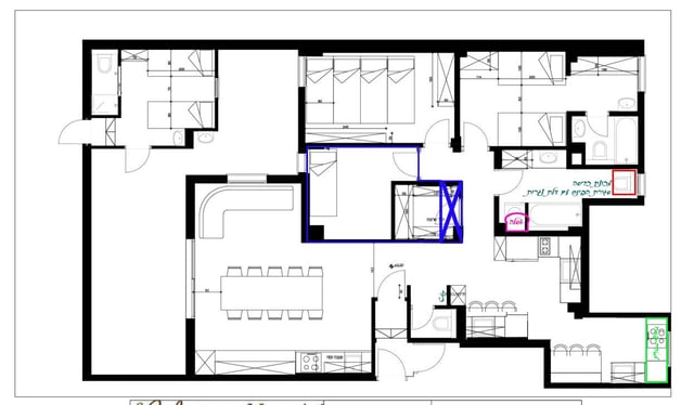
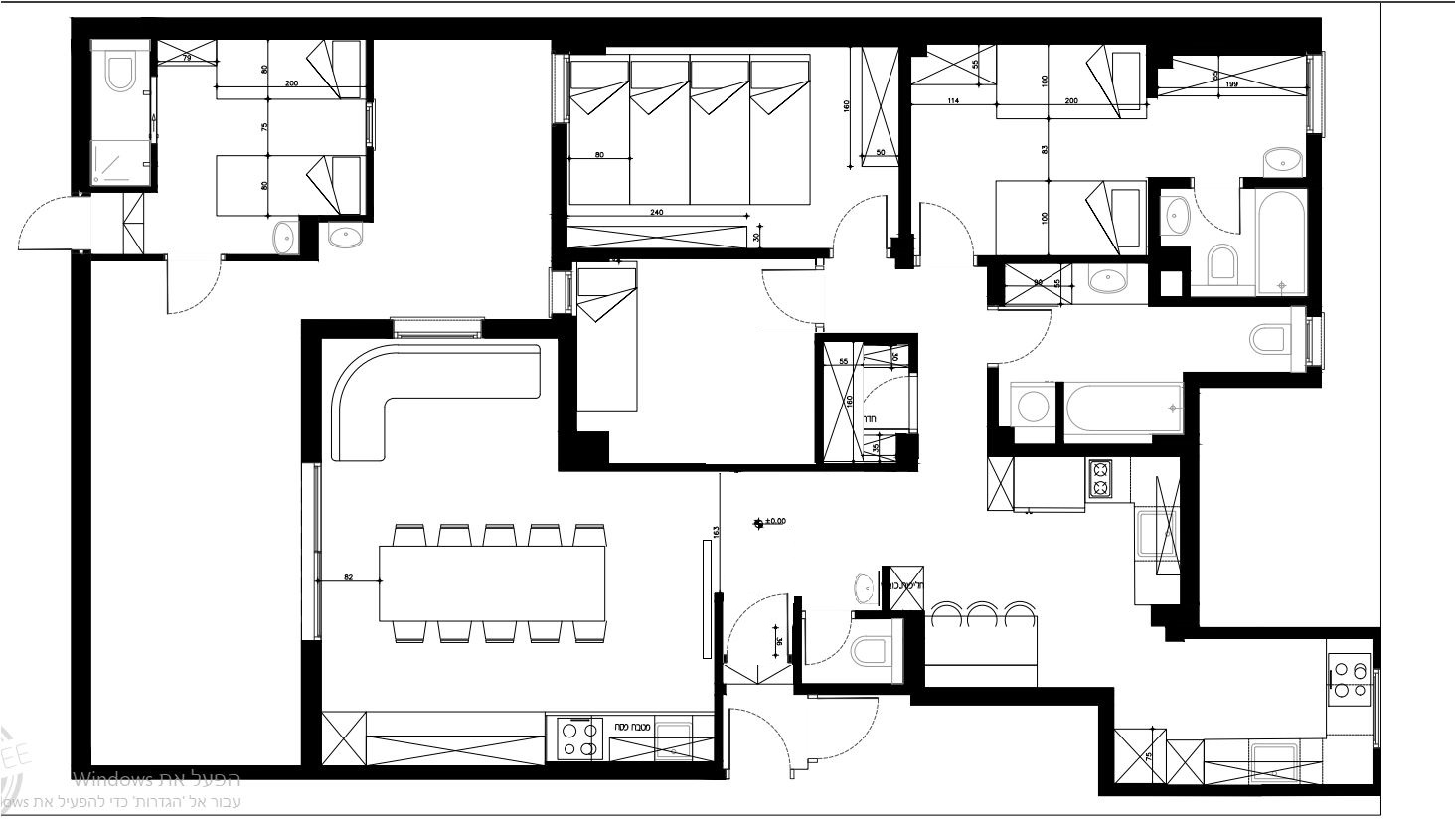
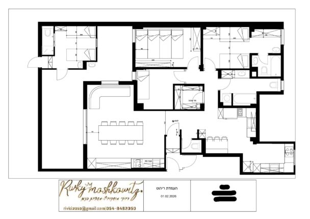
    1)דירה מענינת.
    2)הייתי מזיזה את דלת הכניסה לבית אחורנית,כך לא נכנסים ישר מול קיר.
    3)אפשר להרכיב בפתח הסלון דלת הזזה כך שהיא לא תתפוס כמעט נוכחות אלא רק כשרוצים לסגור.
    יש גם אפשרות ל2 דלתות כנף שאחת תפתח ב90 על הקיר הימני והשניה תפתח ה180 על הקיר השמאלי.
    4)לא יודעת מה השיקולים אבל לדעתי חדר ארונות על חשבון חדר בגודל נורמלי זה פחות טוב.
    בהצלחה.

    • גיטי גרוס

      אדריכלות ועיצוב פנים
      חברה
      02/02/2026 ב11:43 am
      חברה תורמת

      את יכולה לעשות חדר כבסה במקום חדר ארונות לדעתי יש מספיק ארונות בית

  • מימי דיזיין

    אדריכלות ועיצוב פנים
    חברה
    02/02/2026 ב1:04 pm
    פעילה בקהילה

    מעבר להערות שהביאו לך כאן

    הייתי משנה את כיוון השולחן במטבח גם כדי לאפשר גישה נוחה לארון וגם כדי שיוכלו לשבת יותר סועדים

    בחדר שינה כן הייתי משלימה את הקיר עד סוף המיטה כי ויזואלית זה נראה יותר נכון אבל מקצרת את הארון לפני החלון כדי שייכנס יותר אויר ואור במיוחד שהמקלחת ללא חלון

  • רחל ענדען

    אדריכלות ועיצוב פנים
    חברה
    02/02/2026 ב6:20 pm
    פעילה בקהילה

    הייתי עושה החלפה במטבח, איפה שהשולחן שמה את השיש והכיור הפנימי, ואיפה שהשיש הפנימי שמה פינת אוכל, ומוסיפה ארון פסח סגור, ואולי אפילו עם כיור.

  • רחל ענדען

    אדריכלות ועיצוב פנים
    חברה
    02/02/2026 ב7:49 pm
    פעילה בקהילה

Log in to reply.

הדור החדש של ההייטק

לא תאמיני כמה מהר את יכולה להיות שם!

טליה שוורץ מארחת את טובי המומחים – בזום מלא אנדרנלין

כולן יכולות להגיע לזום, לא נדרש ידע מקדים - אפשרות לעבודה מהבית

מעוניינת בפרסום

חשוב: לא כל פרסום מאושר, נא לפרט בדיוק במה מדובר

ניתן לפנות גם במייל ל: [email protected]

מה את מחפשת?

מילות מפתח פופולריות לפי תחומים

ניתן לחפש גם מילות מפתח , תפקידים וכישרון מיוחד שאינם מופיעים ברשימות - "נהגת", "ציור בחול" וכדומה.

דילוג לתוכן