תכנון מטבח אודה לעזרתכן

קדם Forums אדריכלות ועיצוב פנים תכנון מטבח אודה לעזרתכן

Tagged: 

  • מימי דיזיין

    אדריכלות ועיצוב פנים
    חברה
    03/05/2023 ב8:47 am
    פעילה בקהילה

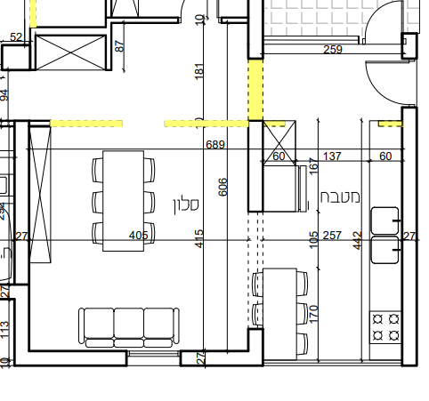
    משהו במטבח הפתוח נראה יותר נכון, בהתחשב בכך שהשולחן סלון עומד במרכז וככה זה יוצר תחושה של סלון מרווח יותר.

    לגבי המיקום של הכיריים אני אולי הייתי מזיזה אותם קצת שמאלה כדי להרויח שיש ולהתרחק מהשולחן והכיסאות במידה ותרצי להוסיף מקומות ישיבה

    זו דעתי מקוה שהועלתי

  • רבקי אלכסנדרוביץ

    אדריכלות ועיצוב פנים
    חברה
    03/05/2023 ב10:03 am
    פעילה בקהילה

    הייתי עושה את התכנית שהמטבח פתוח,

    במקום שולחן הייתי עושה דלפק יותר ארוך וצר

    כדי שבכל אופן תהיה הפרדה, אבל החלל נשאר מאוורר

    את התנורים הייתי ממקמם מתחת לכיריים.

    בהצלחה.

  • רבקי אלכסנדרוביץ

    אדריכלות ועיצוב פנים
    חברה
    03/05/2023 ב10:20 am
    פעילה בקהילה

    יש אפשרות גם להרחיק את הדלפק המקיר.

  • הדס

    אוטומציה עסקית
    חברה
    03/05/2023 ב10:35 am
    חברה רשומה

    תודה על התגובות

    החכמתן!

    האם זה בסדר שהכיוריים רחוקים מהכיריים?

    והאם יש מקום להרחיק את הכיוריים אחד מהשני? או להשאיר אותם צמודים\כיור כפול?

    ממש תודה לכל אחת שמגיבה!

  • רבקי אלכסנדרוביץ

    אדריכלות ועיצוב פנים
    חברה
    03/05/2023 ב1:36 pm
    פעילה בקהילה

    המרחק לא גדול.

    הפרדת הכיורים תצמצם את משטחי העבודה,

    ולכן זה נכון בעיקר במטבחים קטנים להצמיד את הכיורים כמו בתוכנית.


  • הדס

    אוטומציה עסקית
    חברה
    04/05/2023 ב12:39 pm
    חברה רשומה

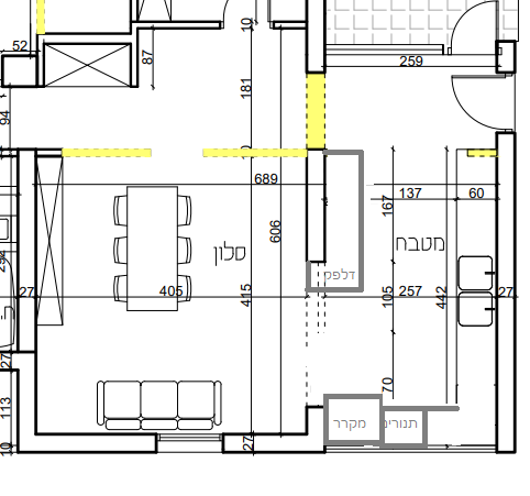
    בדקנו ולא מאפשרים לנו להסיר את הקיר (קיר תומך)

    מה הייתן ממליצות לשלב עם הקיר הזה ועדיין לתת תחושת מרחב

    אפשר גם לשלב את השיש מתחת לחלון

    אודה לעזרתכן ולעצות המחכימות שלכן

  • רבקי אלכסנדרוביץ

    אדריכלות ועיצוב פנים
    חברה
    04/05/2023 ב5:56 pm
    פעילה בקהילה

    את פינת הישיבה הייתי מחליפה עם המקרר והתנורים

  • הדס

    אוטומציה עסקית
    חברה
    04/05/2023 ב11:58 pm
    חברה רשומה

    תודה רבה על הרעיון!

    נתת לנו כיוון 🙂

  • רבקי אלכסנדרוביץ

    אדריכלות ועיצוב פנים
    חברה
    05/05/2023 ב8:40 am
    פעילה בקהילה

    בשמחה!

    תמיד אפשר לפנות אלי

    0548410064

Log in to reply.

מעוניינת בפרסום

חשוב: לא כל פרסום מאושר, נא לפרט בדיוק במה מדובר

ניתן לפנות גם במייל ל: [email protected]

מה את מחפשת?

מילות מפתח פופולריות לפי תחומים

ניתן לחפש גם מילות מפתח , תפקידים וכישרון מיוחד שאינם מופיעים ברשימות - "נהגת", "ציור בחול" וכדומה.

דילוג לתוכן